Unit 6 Vanguard Industrial Estate, Henwood, Ashford, TN24 8DH

  • Industrial
  • 26,515 sq ft
  • To Let
Unit 6 Vanguard Industrial Estate, Ashford, Industrial To Let - 20250930_091650438_iOS.jpg
Unit 6 Vanguard Industrial Estate, Ashford, Industrial To Let - 20250930_090721852_iOS.jpg
Unit 6 Vanguard Industrial Estate, Ashford, Industrial To Let - 20250930_090315916_iOS.jpg
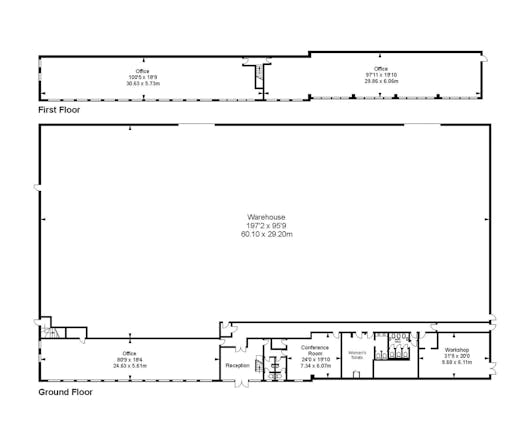
Unit 6 Vanguard Industrial Estate, Ashford, Industrial To Let - Unit 6 Vanguard IE Floor Planb.jpg
Unit 6 Vanguard Industrial Estate, Ashford, Industrial To Let - 20250930_091710845_iOS.jpg
Property Type Industrial
Tenure To Let
Size 26,515 sq ft
Rent Rent on application
Business Rates wef 1 April 2023. Interested parties are however advised to make their own enquiries with the local authority.
Rateable Value £164,000
Estate Charge An estate service charge is payable which is currently £10,096.06 plus VAT per annum for Unit 6.
Energy Performance Rating This property has been graded as C (72)

Workshop / Warehouse

Key Features

  • To be extensively refurbished
  • B1/B2/B8 planning consent
  • 3-phase power supply
  • 2 storey office accommodation
  • Eaves height of 5.5m rising to 7.6m
  • 2 full height roller shutter doors

Description

Vanguard Industrial Estate comprises 6 modern steel framed industrial/warehouse units with generous sized loading and parking areas within a fenced and gated estate. Unit 6 which is to be extensively refurbished lies at the front right-hand side. It provides warehouse/workshop accommodation together with ground and first floor offices.

The warehouse benefits from an eaves height of some 5.5m rising to an apex of 7.6m. There are two full height electric roller shutter doors, 4.77m wide by 4.92m high; and a good level of natural illumination provided by intermittent roof lights and upper level glazing.

Externally there is a large amount of hardstanding for car parking and loading / unloading to front, rear and side.

Location

Henwood Industrial Estate is located approximately ¼ mile to the north-east of Ashford town centre, mid-way between junctions 9 and 10 of the M20. This is a well established and busy industrial estate, with this unit enjoying visibility on to the M20.

Ashford, one of Kent’s designated growth centres, currently has a population of approximately 75,000 inhabitants and is set to grow substantially in the next 20 years. The town is centrally located within the county, benefitting from a fine communications network via the A20/M20 and five mainline railways. Ashford International Passenger station can give direct access to northern continental Europe via Eurostar and London is some 38 minutes distant via HS-1.

Available area

The accommodation comprises the following approximate GIA areas:

Name sq ft sq m
Ground - Floor Warehouse / Office 22,640 2,103.32
1st - Floor Office 3,875 360
Total 26,515 2,463.32

Services

All main services are connected to the premises including a 3-phase (200 Amp) electrical supply.

Terms

The premises are available by way of a new full repairing and insuring lease, the terms of which are to be agreed.